医疗科研
医药包装检测仪器
金属材料试验机
口罩防护服检测类仪器
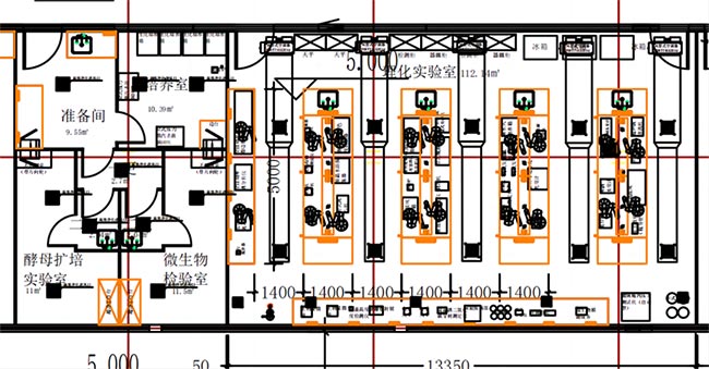
实验室设计规划是一项复杂系统工程,涉及专业众多,要由专业技术人员专业设计,全面综合考虑,遵循以人为本的原则,建成正规化、标准化的实验室。
实验室设计规划是一项复杂系统工程,涉及专业众多,要由专业技术人员专业设计,要全面综合考虑,遵循以人为本的原则,建成正规化、标准化的实验室达到最佳的使用效果。更需要同时精通实验室使用知识和建筑知识作为技术基础。无论是新建、扩建、或是改建项目,都不单纯是选购合理的仪器设备与实验家具。实验室的总体规划设计包括实验室合理布局和平面设计,以及强弱电、给排水、供气、通风、空调、空气净化、安全措施、环境保护等基础设施和基本条件。

平面布局是配合工艺设计同时进行的,平面布局基于工艺设计,在满足工艺要求的前提下,进行建筑学的功能、空间和艺术处理,但平面布局的确定,直接影响结构、水、暖、电、动力等相关专业的设计。


实验室系统包括:实验室消防系统、给排水系统、配电系统、弱电系统、空调系统、通排风系统、供气系统等,这些系统的设计以工艺专业和建筑专业为基础,不仅要满足工艺专业对功能的要求,还要满足建筑专业的要求,而且也要满足他们各个专业之间的协调运作。
版权所有 @ 山东德瑞克仪器股份有限公司 备案号:鲁ICP备12028852号-4 实验室一站式服务,实验室设计,试验仪选配.(鲁)-非经营性-2021-0099

